 
			 
				In contesto residenziale di recente costruzione, proponiamo in vendita un elegante appartamento situato al primo piano, servito da ascensore diretto dal piano terra.
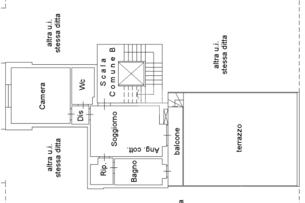
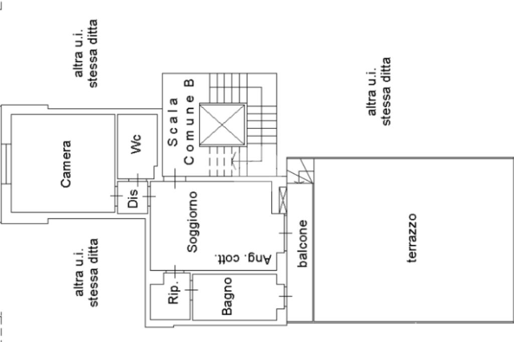
L’ingresso si apre su una luminosa zona giorno living con cucina abitabile, affacciata su balcone e grande terrazzo vivibile, perfetto per essere sfruttato tutto l’anno grazie alle tende da sole automatizzate.
La camera matrimoniale è ampia e particolarmente luminosa, dotata di una grande finestra. A fianco si trova una cabina armadio separata, comoda e funzionale. Il disimpegno è stato organizzato come zona lavanderia, mentre il bagno, completo di doccia, gode anch’esso dell’accesso diretto al terrazzo.
Si tratta di una soluzione ideale per una coppia o per chi desidera uno spazio esterno comodo e vivibile. Il riscaldamento è autonomo, con spese di gestione contenute. Gli infissi sono in PVC con doppio vetro e completa la proprietà una comoda cantina di pertinenza.
Contesto tranquillo e ben servito, con finiture moderne e spazi funzionali: una casa pronta da vivere.
Ti interessa visionare l'immobile?