Trilocale in vendita

None, Via Torino
€ 80.000
3 locali 3 locali
90 Mq 90 Mq
1 bagno 1 bagno

Trilocale in vendita

None, Via Torino

Descrizione annuncio

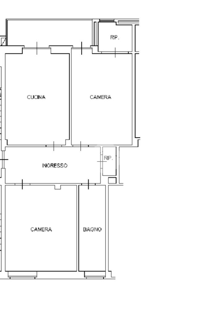
Spazioso appartamento situato al piano rialzato, in posizione strategica vicino a tutti i servizi principali come scuole, negozi, farmacia e fermate dei mezzi pubblici. L’immobile è composto da ingresso su luminoso soggiorno con cucina a vista, con accesso al balcone interno affacciato sul cortile, due camere da letto matrimoniali, bagno finestrato dotato di vasca e due pratici ripostigli, di cui uno collegato direttamente alla seconda camera, ideale come cabina armadio o spazio di stoccaggio. Gli infissi sono in PVC con doppio vetro, garantendo un ottimo isolamento termico e acustico, mentre il riscaldamento è autonomo per una gestione indipendente dei consumi.

Una soluzione ideale per chi cerca comodità, tranquillità e tutti i servizi a portata di mano, senza rinunciare a spazi ben distribuiti.

Mostra tutto

Nelle vicinanze

Trasporto pubblico Trasporto pubblico
None
None
660 m
None
None
960 m
Trasporto pubblico
1,6 Km
Ricariche auto elettriche Ricariche auto elettriche
None Via Beinasco | EnelX
170 m
None Palazzetto dello sport | EnelX
990 m
Scuole Scuole
Scuole
480 m
Farmacia Farmacia
Farmacia
600 m
Supermercati Supermercati
Mercatò
100 m
Supermercati
860 m
IN's
1,6 Km
Bar Bar
Bar
700 m
Ristoranti Ristoranti
L'osteria
640 m
Agriturismo Cascina Ollera di Sopra
2,9 Km
Mostra tutto

Caratteristiche

Rif.:
61112014
Piano:
1 di 3 (Piano rialzato)
Balconi:
1
Camere da letto:
2
Arredamento:
Assente
Condizionamento:
Assente
Mostra tutto
Prezzo Prezzo
€ 80.000
Rata mutuo Rata mutuo
€ 367 / mese
Spese annue Spese annue
€ 1.000
Proponi il tuo prezzoProponi il tuo prezzo

Classe Energetica

F
F
F
F
F
F
F
F
F
EP globale non rinnovabile:
274.88 kW h/m² anno
EP globale rinnovabile:
125.62 kW h/m² anno
EP invernale del fabbricato:
EP estiva del fabbricato:
Anno di costruzione:
1970
Riscaldamento:
Autonomo
Tipo impianto:
A radiatori
Tipo alimentazione:
Metano

Ti interessa visionare l'immobile?

Fissa un appuntamento  Fissa un appuntamento

Richiedi informazioni

* Questi campi sono obbligatori

Calcola il tuo mutuo

Semplice e senza impegno
Anticipo

( % )
Mutuo

( % )

pochi semplici passi

inserisci i tuoi dati
Questionario completato
Grazie per aver richiesto un appuntamento senza impegno con un nostro Consulente del Credito e Assicurativo.

Hai inserito correttamente tutti i dati necessari e a breve riceverai una e-mail con un link da convalidare per inviare i tuoi dati.
Affiliato
Studio None Sas
Via Roma, 97 10060 None (TO)

Il nostro staff


  • Cindy Sortino
    Affiliata

  • Francesco L'Abbate
    Affiliato

  • Marianna Berra
    Coordinatrice
Via Roma, 97 10060 None (TO)
Zona: None-Airasca-Castagnole Piemonte
Mostra su mappa
Orari: Lunedì-Venerdì 09:00 - 12:30 / 15:00 - 19:30; sabato 09:00 - 17:00
Affiliato
Studio None Sas
Via Roma, 97 10060 None (TO)

2025 Tecnocasa Franchising S.p.A. - P. IVA 08365160152 - Via Monte Bianco 60/A 20089 Rozzano (MI). Ogni agenzia ha un proprio titolare ed è autonoma. Privacy policy | Policy utilizzo | Cookie policy